Floor Plans
Rooms
-
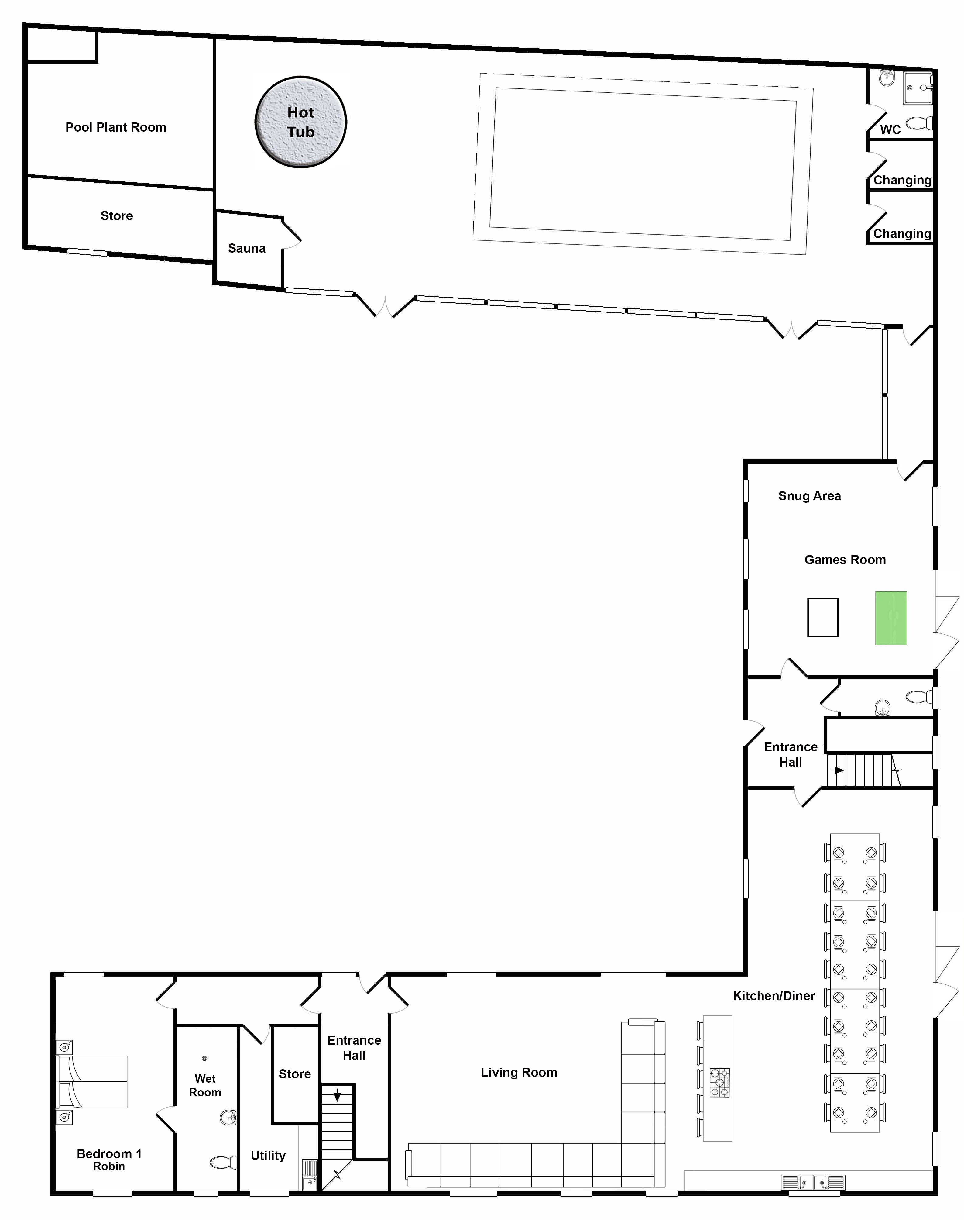
Bedroom 1 - Robin Bedroom 1 (Robin)
Bedroom 1 is on the ground floor and is access friendly. It can be a super king or a twin room, and it has a large en suite wet room.
-
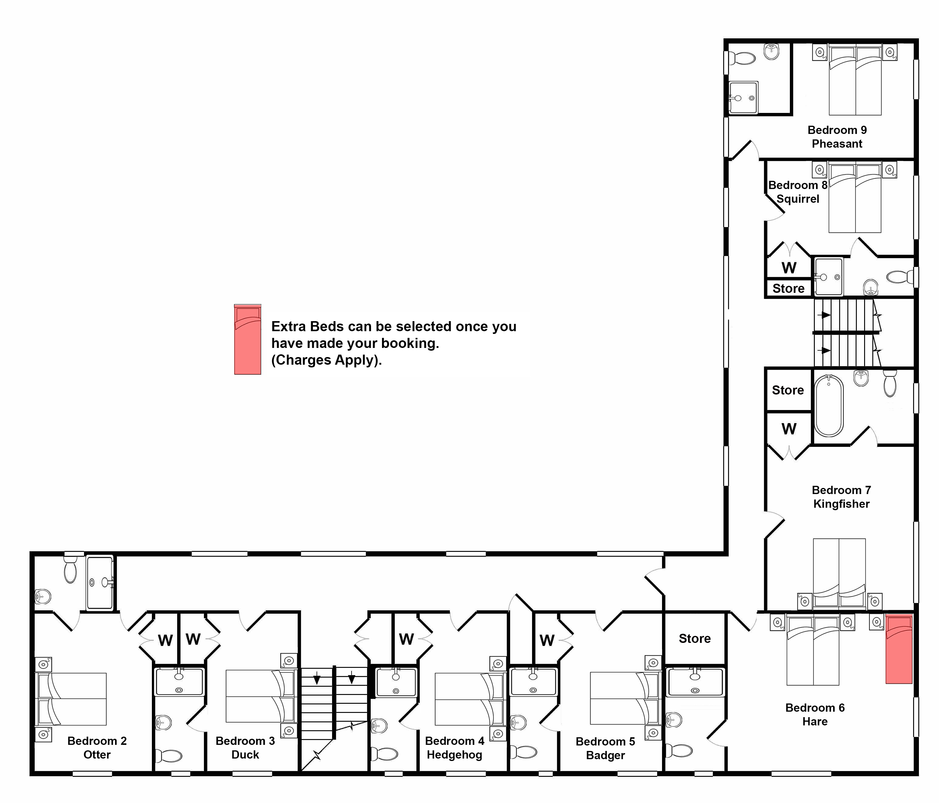
Bedroom 2 - Otter Bedroom 2 (Otter)
Bedroom 2 is on the first floor and can be a superking or twin room. It has an en suite shower room.
-
Bedroom 3 - Duck Bedroom 3 (Duck)
Bedroom 3 is on the first floor and can be a super king or a twin room. It has an en suite shower room
-
Bedroom 4 - Hedgehog Bedroom 4 (Hedgehog)
Bedroom 4 is on the first floor and can be a super king or a twin room. It has an en suite shower room
-
Bedroom 5 - Badger Bedroom 5 (Badger)
Bedroom 5 is on the first floor and can be a super king or a twin room. It has an en suite shower room
-
Bedroom 6 - Hare Bedroom 6 (Hare)
Bedroom 6 is on the first floor and can be a super king or a twin room. It has an en suite shower room. There is also the option of an additional single bed which can be added as a chargeable extra after you have made your booking.
-
Bedroom 7 - Kingfisher Bedroom 7 (Kingfisher)
Bedroom 7 is on the first floor and can be a super king or a twin room. It has an en suite bathroom with a bath and overhead shower.
-
Bedroom 8 - Squirrel Bedroom 8 (Squirrel)
Bedroom 8 is on the first floor and can be a super king or a twin room. It has an en suite shower room.
-
Bedroom 9 - Pheasant Bedroom 9 (Pheasant)
Bedroom 9 is on the first floor and can be a super king or a twin room. It has an en suite shower room.
-
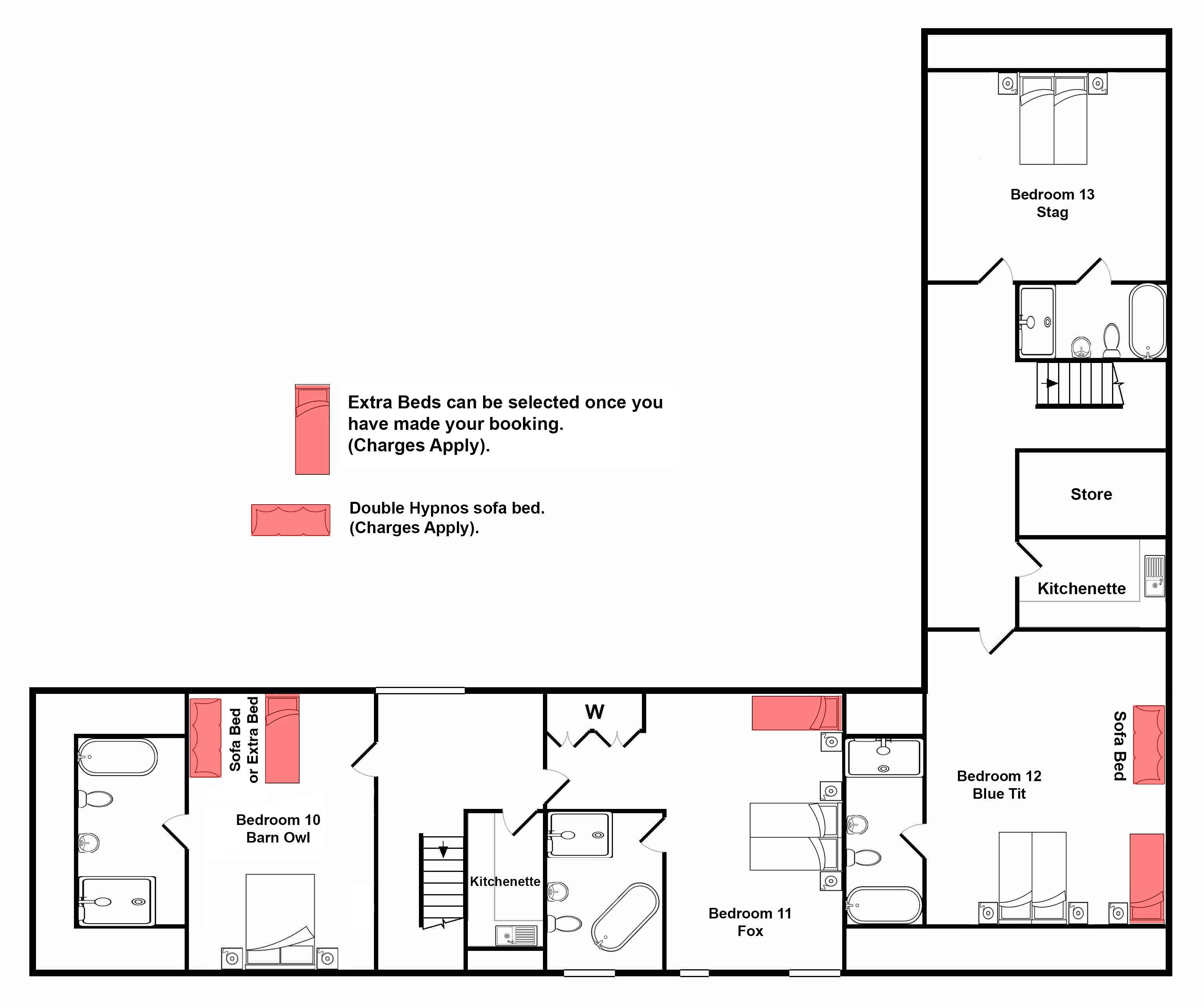
Bedroom 10 - Barn Owl Bedroom 10 (Barn Owl)
Bedroom 10 is on the second floor and has a super king bed with the option of a single bed or a sofa bed (a comfortable Hypnos double) at an extra charge. It has an en suite bathroom with a free standing bath and a walk-in shower.
-
Bedroom 11 - Fox Bedroom 11 (Fox)
Bedroom 11 is on the second floor and can be a super king or a twin room. It has an en suite bathroom with a free standing bath and a walk-in shower. There is also the option of an additional single bed which can be added as a chargeable extra after you have made your booking.
-
Bedroom 12 - Blue Tit Bedroom 12 (Blue Tit)
Bedroom 12 is on the second floor and has zip and link beds that can be arranged as a super king or twins. This room also has the option of an additional single bed and/or a Hypnos double sofa bed so can sleep up to 5 guests; both of these are available at an extra charge. There is an en suite bathroom with a free standing bath and walk-in shower.
-
Bedroom 13 - Stag Bedroom 13 (Stag)
Bedroom 13 is on the second floor and can be a super king or a twin room. It has an en suite bathroom with a free standing bath and a walk-in shower.
-
Kitchen Kitchen
-
We don't have an image of this room just yet, sorry. Equipment
This property owner offers the following items. If required these can be selected while doing your bed configurations within your booking.
2 x Travel Cots (age 2 yrs and under)
2 x Highchairs
1 x Wheelchair Ramp (entrance)
1 x Shower Stool (Bedroom 1 ensuite).